北京恒天明澤基金銷售有限公司,是恒天財富旗下的財富管理平臺和銷售機構,其新分公司辦公地址位于楷林中心,由鄭州專業辦公室裝修公司宏鈺堂負責設計裝修。本案辦公設計理念以簡約、雅致、時尚、質感為主線,在現代簡約的基礎上,提升空間質感。
辦公室前廳以石材和木飾面搭配,色彩及紋路有深有淺,另以不銹鋼線條做裝飾,增加了形象墻的層次感及美感。形象墻反燈槽的設計有效拓展了高度,拉伸了前廳空間。休閑區及水吧臺的設計,活躍了整體空間的氣氛。

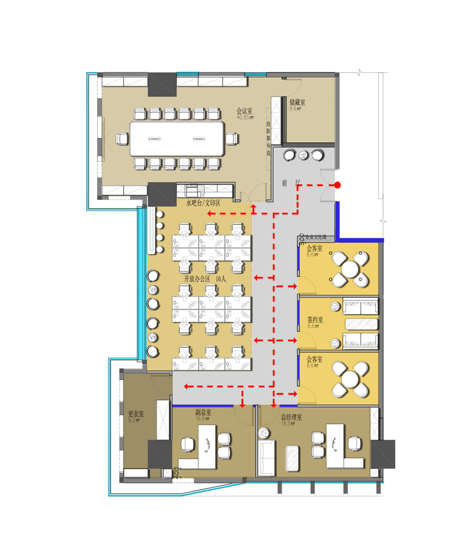
北京恒天明澤基金銷售有限公司,是恒天財富旗下的財富管理平臺和銷售機構,其新分公司辦公地址位于楷林中心,由鄭州專業辦公室裝修公司宏鈺堂負責設計裝修。本案辦公設計理念以簡約、雅致、時尚、質感為主線,在現代簡約的基礎上,提升空間質感。辦公室前廳以石材和木飾面搭配,色彩及紋路有深有淺,另以不銹鋼線條做裝飾,增加了形象墻的層次感及美感。形象墻反燈槽的設計有效拓展了高度,拉伸了前廳空間。
北京恒天明澤基金銷售有限公司,是恒天財富旗下的財富管理平臺和銷售機構,其新分公司辦公地址位于楷林中心,由鄭州專業辦公室裝修公司宏鈺堂負責設計裝修。本案辦公設計理念以簡約、雅致、時尚、質感為主線,在現代簡約的基礎上,提升空間質感。
辦公室前廳以石材和木飾面搭配,色彩及紋路有深有淺,另以不銹鋼線條做裝飾,增加了形象墻的層次感及美感。形象墻反燈槽的設計有效拓展了高度,拉伸了前廳空間。休閑區及水吧臺的設計,活躍了整體空間的氣氛。
