HITATA嗨獺獺是以美國正面管教(POSITIVE DISCIPLINE)養育理念作為依托,致力于打造親子游泳+新思維教育+游玩多功能一體的趣味性親子早教空間,空間內提供OHMY DESIGN Kids小小發明家兒童創新課程,INWAY親子游泳中心水中安全早教體系,美國正面管教POSITIVE DISCIPLINE。下面就和鄭州專業早教裝修公司宏鈺堂小編一起走進這個充滿童趣的空間吧!



我們以弧形元素及個性色彩的設計概念帶給家長及孩子一個有驚喜、有體驗的趣味空間,促進父母和孩子更多的互動與陪伴。讓父母一起參與孩子成長,激發孩子們對發明創新的興趣和熱情,及對世界的好奇心和探索欲。


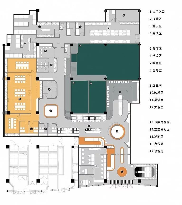
在早教空間布局上,通過合理的空間動線及造型結構,使這些不同功能的空間彼此交融。保證空間形象的整體性的同時,又確保各空間能進行互動交流。開放共享、又獨立私密,不同的空間體驗在這里有機結合成一個整體。




孩子的健康成長離不開安全,我們將弧形元素融入設計中,講究空間的流動性與靈活分隔,在給兒童帶來生動性體驗的同時,給孩子構建一個自然柔和的趣味空間。